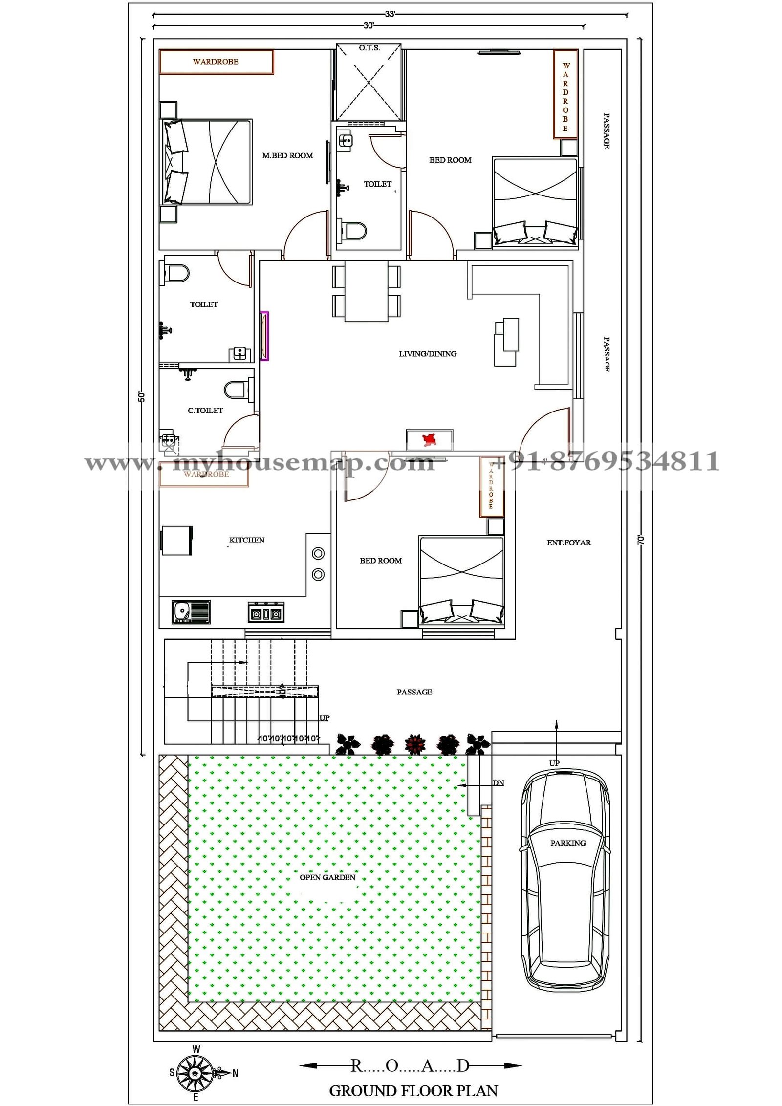
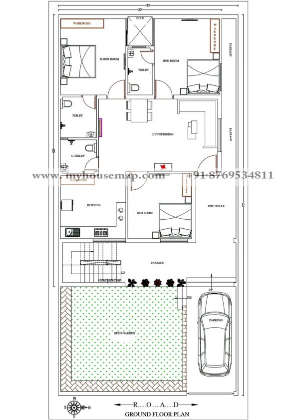
33×70 ft house plan
33×70 ft house plan: east facing two bhk map, suitable for 30 ft to 60 ft floor plan.
- Size Guidefor house design size and details call or whats app us whats app: +91 8769534811 Email: myhousemaps@gmail.com Phone: +91 8769534811, +91 8769534722
- Delivery & Return
Delivery
We provide 2 different option 1 by 1 First option as per our expertise The second option as per your choice And 1 time final modifications the best option Give us a shout if you have any other questions and/or concerns. Email: myhousemaps@gmail.com Phone: +91 8769534811, +91 8769534722 - Ask a Question
33×70 ft house plan: east facing two bhk map, two master bedrooms attached toilet, one bedroom, living and dining hall, kitchen, common toilet, outside stair, garden area, car parking.
| Floors | |
|---|---|
| building type | |
| Style |
| 5 |
|
0 |
| 4 |
|
0 |
| 3 |
|
0 |
| 2 |
|
0 |
| 1 |
|
0 |
- 2 floor home front elevation
- 3 floor commercial cum residential design
- 3 floor latest house design
- 3d house design four story
- 15×30 ft home plan
- 18×18 ft floor plan
- 23×30 ft house map
- 25×46 ft floor plan
- 28×48 ft house map
- 30×30 ft home plan
- 30×30 ft house map
- 30×40 ft home map
- 30×52 ft house plan
- 40×65 ft floor plan
- 45×35 ft home plan
- 50×36 ft house map
- 54×50 ft floor plan
- best home design for double floor
- best house design duplex
- best house with shop design
- commercial cum residential elevation 3 floor
- corner house front elevation 2 floor
- Duplex home front elevation design
- duplex house design
- elevation design for multi story apartment
- exterior home design four floor
- exterior unique house design 2 floor
- front elevation 1 floor
- g+1 corner home elevation design
- g+2 new house design
- home front elevation design double story
- Hospital building elevation
- house elevation design triple floor
- house front elevation design g+2
- modern 2 storey house design
- modern duplex home design
- modern duplex house design
- new home design for g+3 building
- simple home design for single story
- simple modern house design with g+1
- simple single floor house design
- simple small house design 2 floor
- small house front design with two floor
- Triple floor building elevation design
- two storey modern house design
Related Products
25×56 ft 2 bhk house plan design, north facing map, suitable for 20 ft to 50 ft floor plan.
32×50 ft house with shop floor plan, east-facing commercial map, suitable for 25 ft to 50 ft floor plan.
30×52 ft house plan: west facing three bhk plan, suitable for 25 ft to 50 ft floor plan.
29×50 ft home plan, southeast face house map, suitable for 25 ft to 50 ft floor plan.
28×40 ft 2 bhk floor plan, single floor north east facing house plan, suitable for 25 ft to 40 ft floor plan.
23×50 ft house plan, east-facing 3 bhk map, suitable for 20 ft to 40 ft floor plan.
45×35 ft home plan, east facing two bhk, suitable for 40 ft to 35 ft floor plan.
23×30 ft house map, east facing 2bhk floor plan, suitable for 20 ft to 30 ft floor plan.
15×30 ft home plan, east facing, 1 bhk floor plan, suitable for 12 ft to 30 ft floor plan.
54×50 ft floor plan: west facing three bhk house map , suitable for 50 ft to 40 ft floor plan.
25×46 ft floor plan, east facing 2bhk with shop house plan, suitable for 20 ft to 40 ft floor plan.
40×65 ft floor plan: south facing four bhk, suitable for 35 ft to 60 ft floor plan.



Reviews
There are no reviews yet.